Wohnen im Alter Weisses Kreuz Flüelen
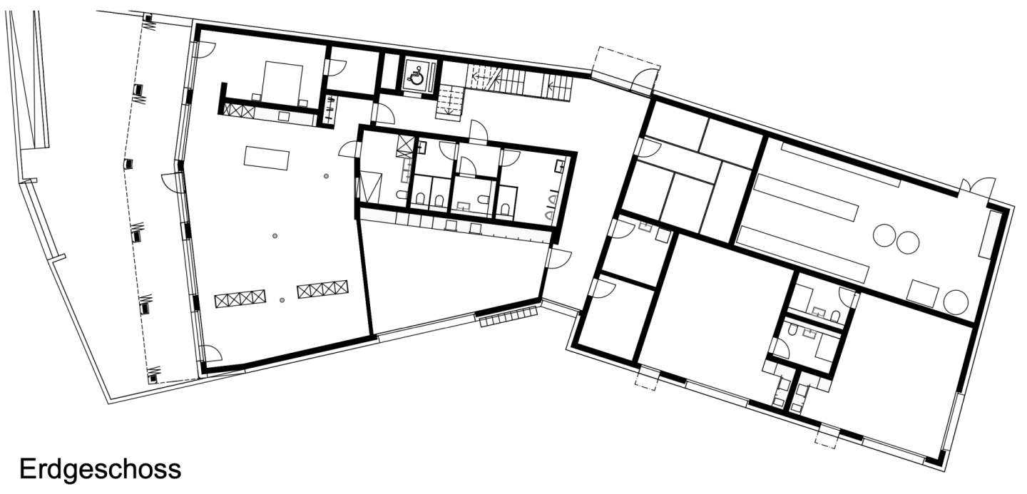
Die im Zentrum von Flüelen liegende Liegenschaft «Weisses Kreuz» deckt das Bedürfnis für altersgerechte Wohnungen an zentraler Lage in allen Belangen ab. Die schiefwinklige Form des Volumens passt sich in die bestehende Struktur des dicht bebauten Dorfkerns ein und fügt sich durch seine Setzung wie selbstverständlich in das im ISOS eingetragene schützenswerte Ortsbild.














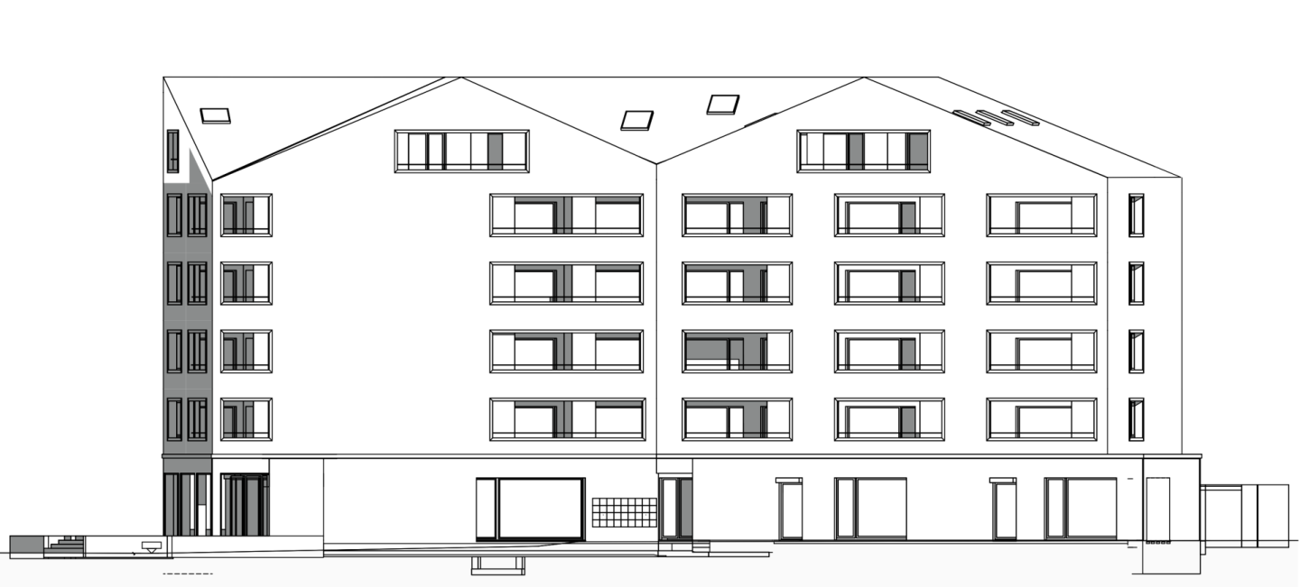
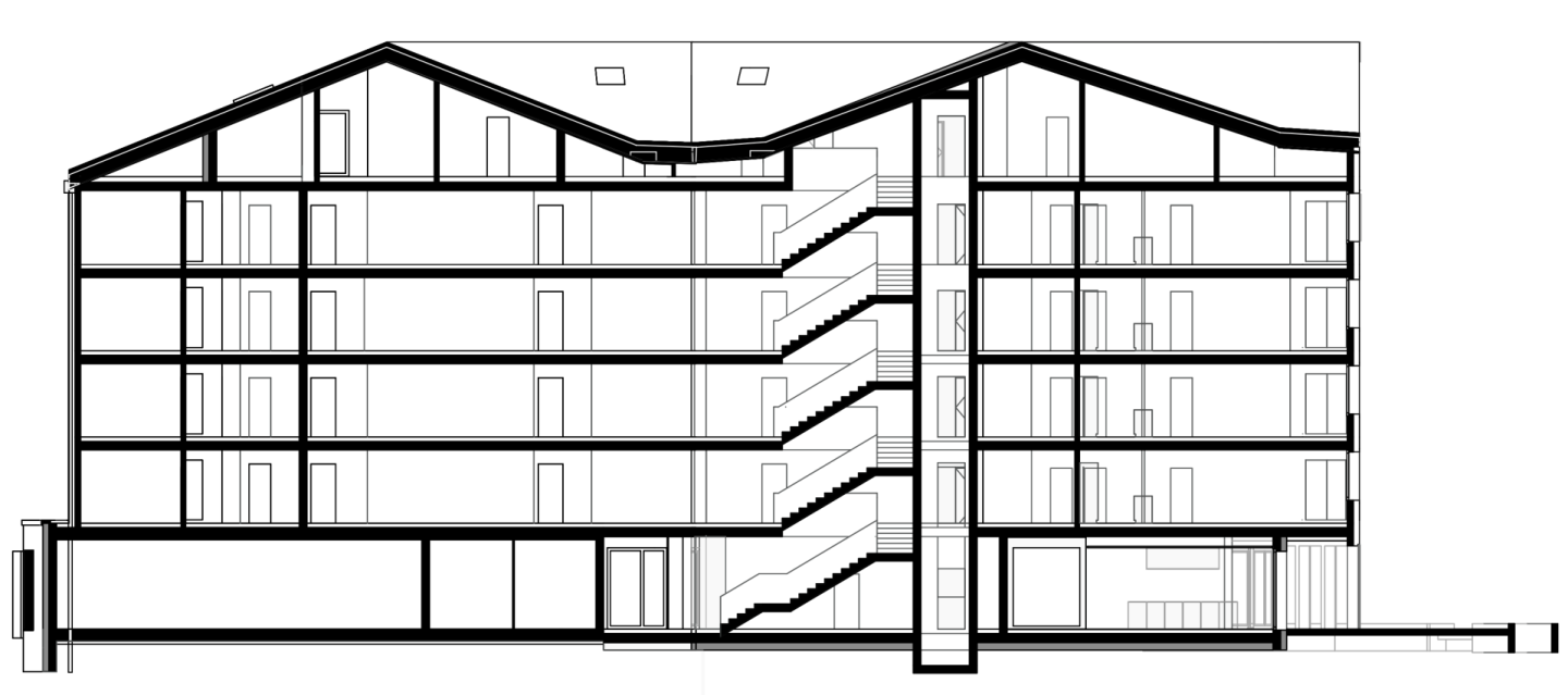
Durch das Gebäude entsteht im Norden ein grosser öffentlicher, im Süden ein privater Hof. Die grossen Flächen der Fassaden werden durch präzise Knicke gebrochen und die allseitigen Giebelfassaden, sowie der in der Materialisierung differenzierte Sockelbereich reduzieren optisch das Volumen des sechsgeschossigen Baukörpers. Das Kreuzgiebeldach orientiert sich an der intakten Dachlandschaft des Dorfes und ergänzt diese.
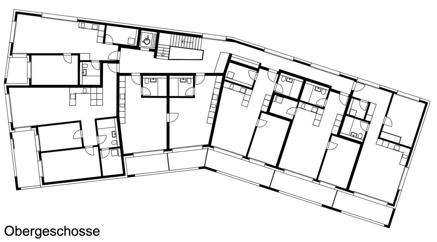
Der Wohnungsmix wurde anhand einer Bedürfnisnachfrage bei der Gemeindebevölkerung von Flüelen ermittelt. Der Mix beinhaltet 1.5, 2.5 und 3.5 Zimmer-Wohnungen. Den Bedürfnissen der betagteren Klientel angepasst sind die Wohnungen teilmöbliert, barrierefrei und mit kurzen Wegen konzipiert. Ergänzend zu den Wohnungen steht für die BewohnerInnen ein gemeinsamer Aufenthaltsraum zur Verfügung.
2022 wurde die ursprünglich als Café geplante Fläche im Erdgeschoss in eine hochwertige Loftwohnung umgebaut. Ausschlaggebend dafür war die Corona-Pandemie.
Tellco Vorsorge AG
MFH mit 32 Alterswohnungen
Projektentwicklung, Entwurf, Ausführungsplanung, Kostenplanung, Bau-/Projektleitung
2017 – 2020