Überbauung «Wiitsicht» Bahnhofstrasse Willisau
1. Rang Studienauftrag
Wertvoller städtebaulicher Beitrag – ein Leuchtturm für Willisau. Das Projekt verfolgt das Ziel, einen unverwechselbaren nachhaltigen Ort mit starker Identität zu schaffen. Neben den übergeordneten, städtebaulichen und räumlichen Qualitäten spielt vor allem die Art der Nutzungen eine wichtige Rolle.









Die Idee für den Entwurf WIITSICHT entwickelt sich aus einer intensiven Auseinandersetzung mit den spezifischen Eigenschaften des Ortes, respektive der Parzellen: lauschiger Grünraum in nordöstlicher Richtung, die befahrene Bahnhofstrasse im Norden und das denkmalgeschützte Polizeipostengebäude auf der Südseite.
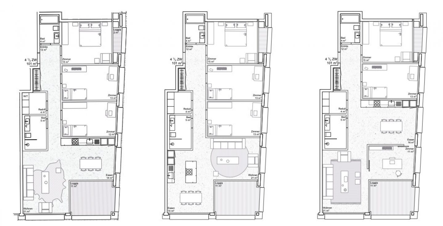
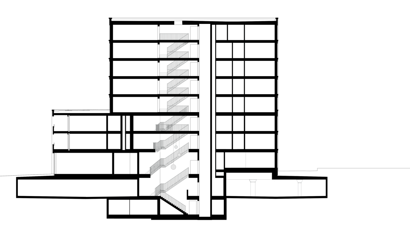
Die Lösung besteht aus zwei Volumen: Ein achtstöckiger Hauptkörper und ein dreistöckiger Sockel, parallel zur nordwestlichen Grundstücksgrenze situiert und geschickt ineinandergeschoben. Durch die Setzung der Volumetrien entsteht ein rundum zusammenhängender attraktiver Aussenraum, der in verschiedenartige Zonen gegliedert wird. Die Hauptkörper des Hauses sind so angeordnet, dass alle Wohnungen von attraktiven Situationen profitieren; die Aussicht in die Weite oder der Blick in das Städtli Willisau.
Zur Strasse im Norden befindet sich ein breiter Eingangsbereich für die öffentliche Nutzung. Nordwestlich und östlich des Wohnhauses bilden sich zwei offene Plätze. Der eine enthält einen Aufenthaltsbereich und einen Spielplatz für die Bewohner. Der andere Platz bildet einen offenen Begegnungsplatz in der Nähe des Einganges für das Wohnhaus. Das denkmalgeschützte Polizeipostengebäude bildet den Abschluss des Areals. Zwischen den zwei Gebäuden entsteht ein privater Aussenraum für die Bewohner.
Die Parkierung erfolgt in der Einstellhalle. Ein grosser Veloraum steht ebenfalls im Erdgeschoss zur Verfügung.
Die Bauten sind auf eine gemischte Nutzung ausgerichtet. Insgesamt bieten sie:
- 24 Eigentumswohnungen und 8 Mietwohnungen in der Grösse von 2.5 Zi-Whg bis 6.5 Zi-Whg
- Ca. 400 m² für Dienstleistungsbetrieb, angesiedelt im Erdgeschoss nördlich zur Bahnhofstrasse
Einfache Gesellschaft Bahnhofstrasse Süd, vertreten durch die Imovera AG, Willisau
32 Wohneinheiten | 400 m² Dienstleistungsfläche
Studienauftrag 1. Rang, Gestaltungsplan, Entwurf, Ausführungsplanung, Projektleitung
2022 – 2024