Überbauung «Heugärten» Geuensee
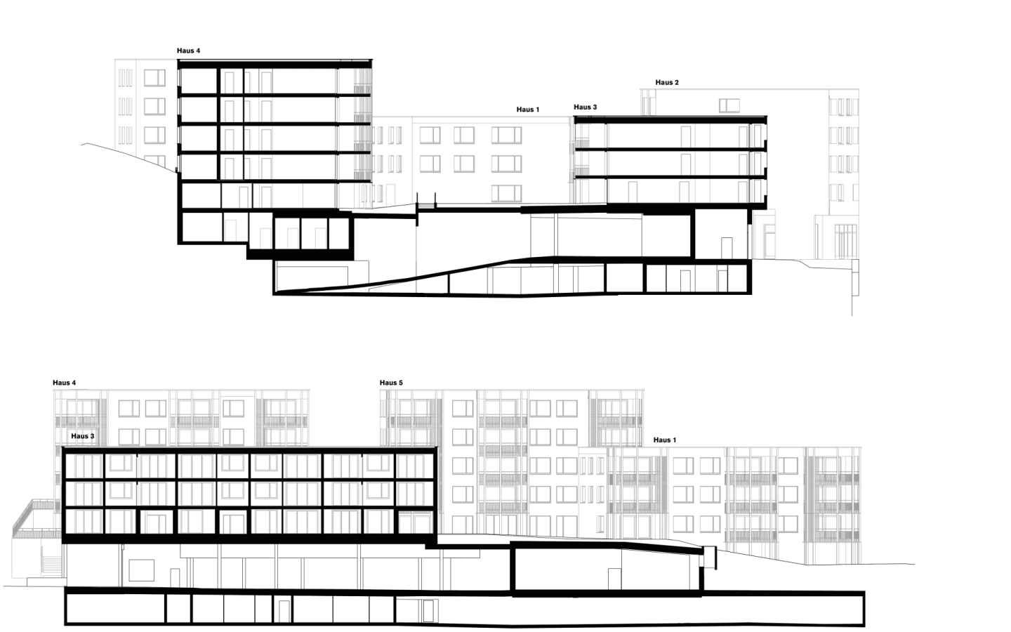
Die Entwicklung von Geuensee soll mit einem qualitativen Wachstum erfolgen. Der Fokus liegt auf dem verantwortungsvollen Umgang mit der Ressource Land sowie einer nachhaltigen Innenentwicklung. Das Areal «Heugärten» wird für die Siedlungsentwicklung nach innen als prioritär eingestuft. Das Projekt Heugärten umfasst fünf Bauten mit insgesamt 76 Wohnungen und steht im Dialog mit dem Projekt «Sternenhaus» auf der gegenüberliegenden Strassenseite.










Das Projekt Heugärten schafft mit der Neuordnung die gewünschte Ein- und Durchsicht. Das Konzept mit den fünf Bauten reagiert mit der geometrischen Ausrichtung und der Dimensionierung der Baukörper präzise und angemessen auf die unterschiedlichen angrenzenden Siedlungsteile. Es gelingt, alle relevanten Bezüge aufzubauen. Die zwei zur Kantonsstrasse versetzten Baukörper übernehmen den Freiraum der Siedlung und führen diesen als Übergang zur Kapelle weiter. In seiner Dimension reagiert der nördliche Baukörper auf das langgezogene Gebäude der gegenüberliegenden Strassenseite. Der zweite Baukörper wird so ausgedreht, dass ein räumlicher Bezug und eine Akzentuierung des Strassenraumes zur Kapelle hin aufgebaut wird. Die Kapelle wird als zentrales Element in den Blickpunkt der räumlichen Abfolge gebracht. An der Schnittstelle zwischen den beiden Baukörpern entsteht eine kleine Aufweitung, welche die dort gelegene Bushaltestelle als öffentlichen Ort markiert.
Der östliche Baukörper fasst den neuen Binnenraum, der als Erschliessungs- und Aussenraum für die Wohnungen dient. Mit seiner Stellung verbindet er zugleich die angrenzenden Freiräume und schafft den Bezug zu den kleineren Baukörpern östlich entlang dem Dorfbach. Der fünfte Baukörper bildet hangseitig den Übergang zu der eher kleinteiligen rückwärtigen Bebauungsstruktur, akzentuiert hier aber auch die Offenheit der gesamträumlichen Disposition der Umgebungsgestaltung. Der Aussenraum verbindet die zwei prägenden Freiraumelemente des Ortes: der Grünzug entlang dem Dorfbach und der Strassenraum der Kantonsstrasse. Es entsteht eine selbstverständliche Zonierung der Freiräume. Das Umfeld der Kapelle und die Grünstruktur entlang des Dorfbaches werden in die Siedlung integriert und in ihrer Ausprägung gestärkt. Die Nutzung umfasst sowohl Eigentums- als auch Mietwohnungen sowie Gewerbe-/Verkaufsflächen.





Fortimo AG
Fünf Baukörper mit 76 Wohneinheiten, 1’000m2 Gewerbe
Teilzonenplanung, Investorenanbindung, Projektentwicklung, Gestaltungsplan, Entwurf, Ausführungsplanung, Projektleitung, Käuferbegleitung
2022- 2025